Quando ho iniziato a muovere i primi passi nella professione l’ho fatto collaborando con un noto studio di Brescia.
Li avrei potuti muovere nello “studio di famiglia”, ma seguii il saggio consiglio di mio padre che mi disse che la cosa migliore per me sarebbe stata andare a imparare da altri per arricchirmi professionalmente e “rubare” modalità di lavoro e pregi che ancora non mi erano familiari.
Così ho fatto ed è stata per me un’impegnativa bellissima palestra, che mi ha lasciato tanto e mi ha fatto capire che tipo di professionista avrei voluto essere.
Ricordo che c’è stato un momento in cui, occupandomi del progetto di ristrutturazione di un grande fabbricato residenziale dell’inizio del secolo scorso, ho pensato che non avrei voluto fare nient’altro che quello nella mia vita professionale.
Ho sentito che stavo restituendo vita a qualcosa di abbandonato ed è stato emozionante; mi ha fatto comprendere il potere trasformante del mio lavoro!
Ecco perché quando mi è stato chiesto di ristrutturare una casa storica che, come leggerai, ha alle spalle una storia non indifferente, ne sono stata molto felice!
Tempo fa ti avevo raccontato di una ristrutturazione del piano terra di una casa del 1600 in nucleo storico; a dire il vero avevo cominciato parlandoti del risanamento ambientale di alcuni locali posti al piano terra, ma su un lato un po’ ribassati rispetto al piano stradale.
Un progetto che mi ha particolarmente appassionato, come tutti i progetti che riguardino fabbricati storici; le origini di questo risalgono alla fine del 1600 e nel corso degli anni è stato anche una locanda/taverna!
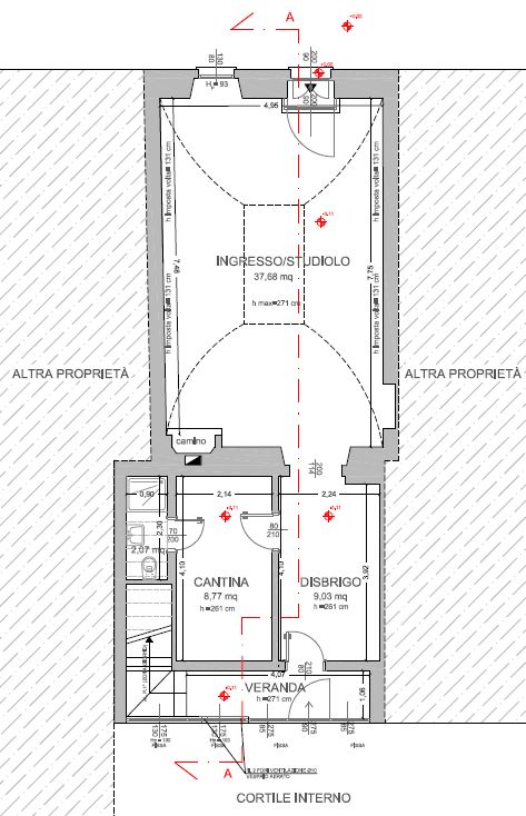
Come ti dicevo siamo al piano terra, ma il fabbricato si sviluppa nel suo insieme su tre piani fuori terra: al piano primo c’è la zona giorno, al secondo (sottotetto) la zona notte e al piano terra ci sono (c’erano) ambienti di servizio.
Una veranda utilizzata in realtà come deposito per libri, cambi armadio ecc., un bagnetto incompleto e inospitale, una tavernetta buia (senza finestre) e un ingresso/studiolo che era stato adibito a cantina, quindi inutilizzabile come tale.
| Il piano terra PRIMA dell’intervento |
| Il piano terra DOPO l’intervento |
Questi ambienti fino ai primi anni 2000 sono stati uno di quei posti del cuore che tutti abbiamo, cioè “la casa della nonna” di uno dei proprietari: una piccola casa composta da due locali ricavati nella grande stanza con il soffitto voltato, una veranda e un bagno.
Ancora prima hanno ospitato anche un’osteria!
In effetti picchiettando gli intonaci nel corso dei lavori abbiamo scoperto che, oltre alla zona centrale della volta di copertura, anche le pareti erano state nel tempo adornate da degli affreschi che decoravano l’osteria.
Ma non è tutto.
Accanto al caminetto abbiamo scovato anche la presenza di una nicchia che in passato veniva probabilmente utilizzata come “moscaiuola”, cioè come un vano a ripiani incassato nella muratura e chiuso da una finissima e fittissima rete metallica per proteggere alimenti, come latticini o salumi.
La frescura della muratura in pietra li manteneva in temperatura, mentre la rete li preservava da mosche e topi.
Insomma, molte scoperte curiose hanno caratterizzato questa ristrutturazione con la quale abbiamo raggiunto questi obiettivi:
- eliminazione dell’umidità degli ambienti, il cui solaio era contro-terra;
- eliminazione della risalita capillare di umidità nelle murature;
- creazione di un nuovo bagno utilizzabile a piano terra;
- formazione di uno spazio home-working e studio, autonomo e isolato dagli spazi domestici;
- ambiente accogliente perfetto per ricever gli amici, con zona per pranzi e area relax/tv;
- spazio giochi e compiti per i bambini;
- un nuovo ingresso dalla strada per gli ospiti (prima non era utilizzabile perchè di fatto era usato come cantina);
- ambiente filtro, con grande vetrata, che porta al piano primo;
- ridistribuzione degli spazi con formazione di corridoio per armadi e spazi contenitivi e nuova cantina.
Il progetto inizialmente prevedeva di rimuovere l’intonaco delle murature perimetrali, completamente saturo d’acqua e umidità e di re-intonacare le murature con apposito intonaco deumidificante.
Come può accadere in corso d’opera quando si ristruttura, specie se il fabbricato è antico, mettendovi mano ci siamo resi conto che l’intonaco sulle volte era molto ben aggrappato e di buona qualità.
Il caminetto, non utilizzabile, è stato chiuso per alloggiare la televisione o, in futuro, una libreria; abbiamo infatti predisposto anche un ulteriore punto tv qualora i proprietari decidessero di variare l’assetto degli arredi.





