Come si fa un progetto di ristrutturazione

In questo articolo ti racconto come ottenere un progetto di ristrutturazione che ti consenta di rinnovare la tua casa senza problemi.
 
È il percorso che propongo sempre ai miei Clienti, in qualità di progettista e riferimento tecnico per le loro ristrutturazioni edilizie, da seguire fin dall’acquisizione dell’immobile.

Avendo all’attivo un’ampia casistica, questa mi consente di darti tutte le informazioni che stai cercando.

Se ti sei perso/o la prima parte, dove raccontavo i primissimi step della ristrutturazione e facevo un’importante premessa, la trovi qui.

Lo stato dei luoghi

La prima persona che devi portare nella tua futura casa nuova è il tuo Tecnico!
Non il muratore, non il cugino, non l’amico che ha ristrutturato (chissà come) da solo casa sua.

Questo perchè, una volta fatte tutte le verifiche del caso (eventualmente si può decidere insieme al professionista di coinvolgere anche l’idraulico o l’elettricista…) e appurato che la ristrutturazione “si può fare”, dal punto di vista sia pratico che burocratico (anzi, invertirei l’ordine) si effettua un accurato rilievo e si disegna lo stato della casa prima dei lavori.

 
Queste valutazioni sono lo step preliminare per la definizione del progetto e fanno parte di NEW START!

 
Come si fa un progetto di ristrutturazione
 
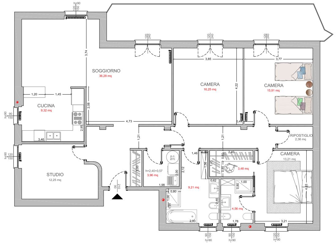
Nel caso che vedi qui sopra, questo era un grande pentalocale (4 camere, di cui una adibita a studio), con cucina separata, due bagni (di cui uno di servizio) e ripostiglio, con un bel soggiorno con affaccio sul terrazzo.
 
 
La Famiglia che mi ha dato il piacere di lavorare con i suoi desideri per realizzare la visione che aveva di “casa” mi ha chiesto di mantenere la cucina separata, ma connessa alla zona living.

Al tempo stesso voleva mantenere camere e studio, creare una lavanderia e avere due bagni completi e ampi.

 
 
 
LE PRIME BOZZE…
 
Sulla base delle preferenze e delle chiacchiere fatte con i Clienti si inizia a ipotizzare delle soluzioni (ve le risparmio tutte! eh eh!), stringendo il campo a un’ipotesi che preveda anche una piccola cabina armadio annessa alla camera matrimoniale, a discapito di uno dei due bagni.

In questo intervento la cucina, che era separata, è stata spostata per essere annessa al soggiorno/salotto.

Resta comunque “riservata” perché schermata da una tramezza e visivamente delimitata da una piccola penisola per la colazione.

Come si fa un progetto di ristrutturazione

Al posto della vecchia cucina hanno trovato spazio il nuovo bagno (il piccolo si trovava dove ora c’è la nuova cucina, se guardi il disegno precedente) e la lavanderia, che è anche locale tecnico (contiene la pompa di calore che produce l’acqua calda sanitaria).

Il secondo bagno in questa proposta è di uso esclusivo della camera matrimoniale; ma di come è finita ne riparliamo nel prossimo articolo, nella parte 3: come vedrai abbiamo rivoluzionato (quasi) tutto!

Come dire, le proposte sono solo un punto di partenza.

Il punto da cui parte il meraviglioso viaggio della scelta ideale, della quale ti parlo nella puntata successiva di questo racconto.

 
 
A presto!

Lascia un commento